About HGAD Architecture Design
Extensive Experience
I worked for a firm of Chartered Surveyors for 15 years. During that time, I gained a Diploma in Surveying (Practice) and had extensive experience as an Assistant Surveyor with residential, commercial, and institutional properties. I was involved with Property Management and building projects, where producing drawings on AutoCAD was an essential part. I worked for commercial and private clients, including several Charities, a large independent school, and small property companies.

Our Journey & Services
I left the firm in August 2018 and, after planning, set up HJEG CAD Services in January 2020, offering freelance CAD services based on my extensive experience since 2003. The firm has grown steadily and was rebranded as HG Architecture Design in Autumn 2025. We work directly with private clients, surveyors, architects, property managers, estate agents, building contractors, landscapers, councils, schools, and consultants. We operate under client direction, either remotely or on-site as required.
Contact Us
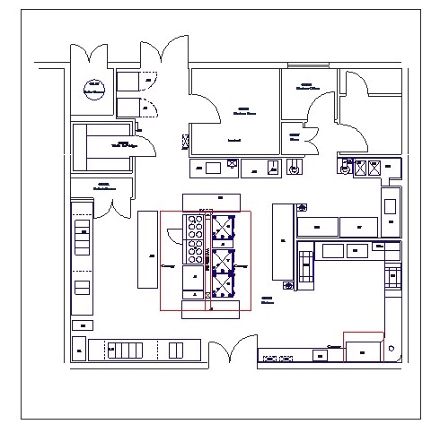
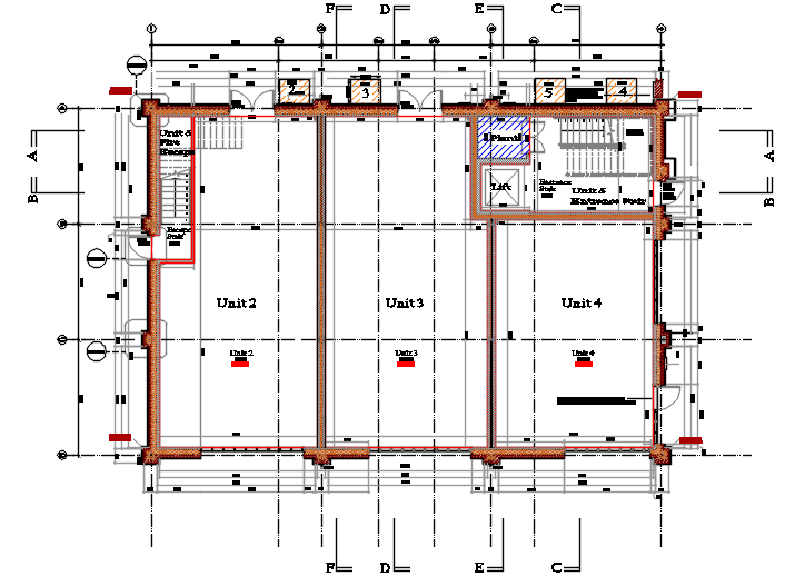
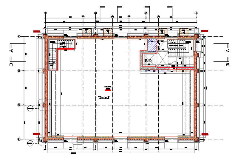
Selected Projects
A selection of featured work














